
已有3257位业主预约成功
* 您的信息我们将严格保密,请放心填写


村上春树说,在自己喜欢的空间里,按照自己喜欢的方式,去做自己喜欢做的事,对我而言这便是自由人的定义。
本案居者是一位从事动漫设计的90后小姐姐,希望空间自由随性,不受约束。她收集了很多动漫手办,需要专门的位置来收纳展示。
因此我们在设计时以全局视角贯穿场景互动,尤其是书房和厨房的隔墙部分,打造灵活的开合式吧台隔断,同时客厅、餐厅、书房都定制充足的收纳和展示区域。
“
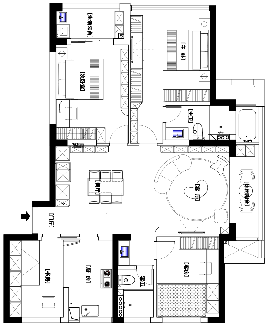
平面设计
/Graphic Drawings/
项目地址 / Address:杜湖名庭
设计施工 / Co :翡曼软装
风格 / Style:奶油复古
项目面积 / Area:132㎡
设计亮点
1.奶油色基底搭配圆弧设计,给人放松的感受
2.厨房和书房之间打造开合式吧台隔断,书房设计手办展示区
3.阳台抬高五公分做休闲区
4.主卧和次卧定制足量衣柜
PART·01
公共空间
慵懒惬意 被光线填满
客厅
我们顺着空间南北纵向的脉络,迎合小姐姐的生活理念,将功能模块联动起来,营造灵活有韵律的动线秩序。
大面积的奶油色和柔光砖尽情渲染空间的温柔,归家的情绪逐渐从理性转变成感性。
隐去多余墙体推门,拱门允许自然光倾泄入内,映照出软装家具的立体轮廓。空间随光影不断发生变化,萦绕向内而生的浪漫。
月牙弯真皮沙发跃居C位,包裹感的造型看上去就很好“窝”的样子。背靠柔软的坐垫,放下心中思绪,慵懒美好。猫爪茶几胖墩墩的,像生活一般圆润美好。
在不影响开间尺度的前提下,客厅背景墙定制整排薄柜,一组开放格用来展示小姐姐的精品动漫手办。
电视背景做减法设计,几何构成的层次感,平衡场景留白。靠近阳台的一侧定制悬空玻璃柜,也是小姐姐动漫手办的展示基地。
阳台区域抬高五公分,摆上吧台椅,偶尔小姐姐一家会坐在这里晒晒太阳,煮茶品酒,享受高质量的放松时光。
餐厅
客餐厅以开放式姿态形成紧密的场景交互,除了延展过来的轨道灯,餐厅还额外设计了千纸鹤吊顶来补充照明。
考虑小姐姐一家对收纳的需求,餐厅沿墙定制一门到顶储物柜、零嵌冰箱位以及水吧台区域。横向摆放的餐岛台兼具储物和餐桌的功能。
书房+厨房
在设计书房时,我们突破固有边界的束缚,利用联动玻璃窗+吧台的形式将书房和相邻的厨房链接起来,开合间能根据需要自由切换状态。
至此,书房不再是闭塞的空间,厨房也多了可以备餐的吧台。
PART·02
睡眠空间
放松惬意 享受生活
主卧
主卧延续奶油的温度与原木的自然触感,建立起睡眠与空间的默契。床背景装饰少量石膏线条和挂画,在光影的铺设下呈现细腻的复古质感。
* 已有7173位业主解决软装问题
